Wentylacja grawitacyjna odchodzi powoli do lamusa. Dziś, gdy budujemy doskonale zaizolowane, energooszczędne czy pasywne budynki, usuwanie zużytego powietrza przez kratki i kominy wentylacyjne oraz dopływ świeżego powietrza przez nieszczelności okien i drzwi, zwyczajnie traci rację bytu. W nowoczesnym budownictwie najbardziej racjonalnym, a zarazem jedynym gwarantującym tak ogromną skuteczność rozwiązaniem są układy nawiewno-wywiewne z odzyskiem ciepła.
Jak w uproszczeniu wygląda schemat wentylacji mechanicznej do domu jednorodzinnego? Otóż układy takie składają się z systemu kanałów powietrznych zamontowanych w budynku, specjalnie zaprojektowanych wentylatorów, filtrów powietrza, centralek sterujących, kolan i kratek.
– W najkorzystniejszym dla inwestora wariancie, czyli instalacji z rekuperatorem, istotnym elementem jest wymiennik ciepła, który do ogrzania powietrza dostarczanego do budynku odzyskuje ciepło z powietrza zużytego. Przykładem takiego rekuperatora może być np. oferowany przez nas MISTRAL PRO 450 EC, zapewniający strumień objętości powietrza na poziomie 300-450 m³/h. Gwarantuje on stałe, sprawne dostarczanie świeżego powietrza do budynku i usuwanie powietrza zużytego, bez mieszania się strumieni oraz skuteczność odzysku ciepła nawet do 95% – mówi projektant instalacji sanitarnych z firmy Pro-Vent.

fot. PRO-VENT
Jeśli schemat wentylacji mechanicznej do domu jednorodzinnego zostanie precyzyjnie i fachowo zaprojektowany, to wygeneruje niemałe oszczędności na kosztach ogrzewania, zarówno dzięki odzyskowi ciepła, jak i wyeliminowaniu konieczności uchylania okien, przez które ucieka cenna i droga energia grzewcza. A dla nieprzekonanych, którzy wolą mimo wszystko otwierać okna (lub, co gorsza, nie otwierać ich wcale), argumentem może być zdrowie. Brak skutecznego odprowadzenia wilgoci, powstającej w każdym budynku, w którym przebywają ludzie, prowadzi do rozwoju grzybów i pleśni. Przy wilgotności powyżej 60% może nastąpić znaczy wzrost ilości zarodników w powietrzu, a także odchodów pajęczaków i roztoczy. Stąd już tylko krok do alergii. W niewietrzonych pomieszczeniach, zwłaszcza tych, które usytuowane są w nowoczesnym, szczelnym budownictwie, szybko dochodzi do spadku stężenia tlenu (co odczuwalne jest w postaci zmęczenia, bólu głowy, spadku wydajności pracy), przy jednoczesnym wzroście stężenia szkodliwego dwutlenku węgla.
Co mówią normy?
Zanim powstanie schemat wentylacji mechanicznej w domu jednorodzinnym powinniśmy zorientować się, co na ten temat mówią przepisy. Otóż istnieją różne normy i wytyczne dotyczące określania strumienia powietrza wentylacyjnego. Najbardziej popularna jest norma PN-B-03430:1983/Az3:2000 „Wentylacja w budynkach mieszkalnych zamieszkania zbiorowego i użyteczności publicznej – Wymagania”, która jest przywołana w obowiązującym Rozporządzeniu (Warunki Techniczne w sprawie warunków jakim powinny odpowiadać budynki i ich usytuowanie) pomimo faktu, że 5 lat została wycofana przez Polski Komitet Normalizacyjny.
Opracowując schemat wentylacji mechanicznej dla domu jednorodzinnego warto więc próbować określić ilości powietrza wentylacyjnego na podstawie innych norm, w ten sposób, by krotność zachodzących w budynku wymian powietrza zawierała się w przedziale 0,7.. 1.
Poniżej przedstawiona jest ilość powietrza wentylacyjnego, nawiewanego oraz wywiewanego dla budownictwa mieszkaniowego, określona na podstawie normy PN-EN 15251 (została ona wycofana i zastąpiona tłumaczoną obecnie na język polski normą PN-EN 16798-1:2019-06).

fot. PRO-VENT
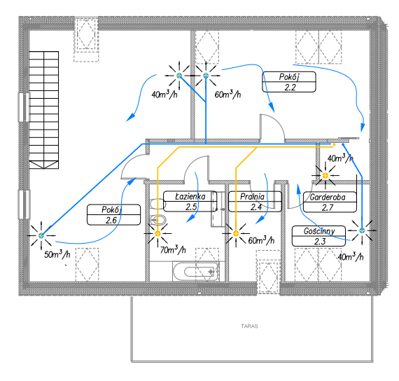
Schemat wentylacji mechanicznej w domu jednorodzinnym
Przykładowy schemat wentylacji mechanicznej w domu jednorodzinnym o powierzchni 160 m², wybudowanym na płycie fundamentowej (parter i piętro) może wyglądać następująco (trasa prowadzenia kanałów wentylacyjnych jest zaznaczono poglądowo, dlatego nie wrysowano też wszystkich elementów, które na instalacji powinny się znajdować):
fot. PRO-VENT
Zgodnie z normą PN-EN 15251 w takim budynku ilość powietrza wentylacyjnego została wyznaczona na poziomie 370 m³/h. W takim przypadku świetnie sprawdzi się np. wspomniany rekuperator Pro-VENT MISTRAL PRO 450 EC, zapewniający strumień objętości powietrza na poziomie 300-450 m³/h. Gwarantuje on stałe, sprawne dostarczanie świeżego powietrza do budynku i usuwanie powietrza zużytego; jest także w pełni przystosowany do współpracy z gruntowym wymiennikiem ciepła, a ponadto wyróżnia go cicha praca i niskie koszty eksploatacji.
Oprócz samego doboru rekuperatora, właściwie wykonany schemat wentylacji mechanicznej dla domu jednorodzinnego powinien też objąć kwestie takie jak ilość nawiewów i wywiewów (z uwzględnieniem specyfiki danych pomieszczeń – łazienka, kuchnia, salon). Należy też pamiętać, że powietrze powinno mieć zapewniony swobodny przepływ od nawiewników do wywiewników, czyli z pokoi do łazienki i kuchni. W tym celu drzwi do tych pomieszczeń powinny być podcięte przy podłodze (min. 1,5 cm) albo zaopatrzone w kratki wentylacyjne. Na etapie projektowym trzeba ponadto zastanowić się nad rodzajem kanałów wentylacyjnych – tu istotne jest, aby przewody, które przechodzą przez strefy nieogrzewane lub nieocieplone (piwnica, strych), zostały zaizolowane wełną mineralną o odpowiedniej grubości, co wyeliminuje straty ciepła.
– Ważną kwestią przy projektowaniu i wykonaniu układu wentylacji mechanicznej nawiewno-wywiewnej z odzyskiem ciepła jest też estetyka prowadzenia kanałów. Przy przejściach pomiędzy kondygnacjami warto wykorzystać garderoby, naroża, ścianki kolankowe, istniejące kanały wentylacji grawitacyjnej (ze względu na występujące nieszczelności najlepiej umieścić w nich kanał elastyczny) – mówi specjalista techniczny firmy PRO-VENT.
Należy również zadbać o zapewnienie minimalnych oporów instalacji poprzez przyjmowanie w obliczeniach małych prędkości przepływu powietrza w kanałach do 3÷4 m/s, stosowanie dużych czerpni i wyrzutni z odpowiednimi skrzynkami rozprężnymi oraz niezbyt odległych końcowych nawiewników i wywiewników.

fot. PRO-VENT | Schemat wentylacji mechanicznej w gruntowym wymiennikiem ciepła.
Prawidłowo zaprojektowana i wykonana instalacja wentylacji mechanicznej dla domu jednorodzinnego nie powinna też generować uciążliwego dla domowników hałasu, przenoszącego się od pracującej centrali, przepustnic, nawiewników. Z tego powodu powinno montować się centrale z dala od sypialni czy pokoju, w którym śpią dzieci, a także nie stosować kanałów aluminiowych typu FLEX. Nie należy też montować wyrzutni tuż przy oknie sypialni.
– Ponadto minimalna odległość pomiędzy nawiewnikiem (anemostatem) a centralą powinna być większa niż 4 mb (im większa tym lepsze tłumienie). Gdy z obliczeń i schematu wentylacji mechanicznej w domu jednorodzinnym wynika, że na anemostatach (z reguły tych najbliżej centrali) ciśnienie statyczne będzie wyższe niż 50-70 Pa, należy zastosować przepustnice dławiące w odległości min. 2 m przed anemostatem, co zapobiegnie jego „szumieniu” – wyjaśnia specjalista techniczny firmy PRO-VENT.
Instalatorzy opracowujący schemat wentylacji mechanicznej dla domów jednorodzinnych powinni też zaplanować prawidłowe odprowadzanie skroplin z centrali – najlepiej, gdy za pomocą węża odprowadzającego trafią one do kanalizacji wewnętrznej budynku.
O czym jeszcze pamiętać, opracowując schemat wentylacji mechanicznej dla domu jednorodzinnego? Oprócz kwestii technicznych, dotyczących doboru i rozmieszczenia poszczególnych elementów instalacji, ogromne znaczenie ma również szczelność budynku. Tak, jak nie ma sensu stosowanie wentylacji grawitacyjnej w szczelnym budynku, tak samo mija się z celem wentylacja mechaniczna w budynku nieszczelnym.
Z ofertą firmy można zapoznać się na stronie: www.pro-vent.pl



























