Okna energooszczędne – znak naszych czasów
Podstawę systemu do drzwi przesuwnych DP 180 stanowią profile aluminiowe z przekładkami termicznymi. Tak zaprojektowana konstrukcja ma wpływ na obniżenie strat energii cieplnej, a co za tym idzie – na zmniejszenie kosztów eksploatacyjnych projektowanych obiektów poprzez zastosowanie okien energooszczędnych. Profile aluminiowe DP 180 są przeznaczone do stosowania zarówno w obiektach budownictwa mieszkaniowego, jak i użyteczności publicznej.
W nowej wersji tego sprawdzonego i cenionego przez klientów rozwiązania, na
całym obwodzie futryny wykorzystano profil izolacyjny z HPVC. Zastosowane w systemie kształtowniki z futryny trzyjezdniowej pozwalają na tworzenie futryn wielokrotnych. Aby zapobiec odkształcaniu skrzydeł na skutek oddziaływania różnic temperatur, profile skrzydła zostały wyposażone w przekładki termiczne typu ANTY BI METAL.
Futryny dwu i trzyjezdniowe dają możliwość wykonania z profili aluminiowych konstrukcji w każdym możliwym schemacie otwierania.
System drzwi przesuwnych dla wymagających
Oprócz wprowadzenia nowego rozwiązania, skupiono się również na udoskonaleniu dotychczasowej wersji systemu oraz poszerzeniu oferty okuć. Wszystkie wprowadzone zmiany miały na celu jeszcze lepsze dopasowanie konstrukcyjnych profili aluminiowych do potrzeb klientów.
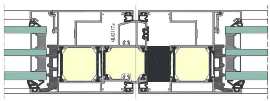
I tak na przykład powstało nowe skrzydło 48.37100.x z przekładkami termicznymi ANTY BI METAL. Wprowadzenie tego rozwiązania ma na celu ograniczenie efektu wypaczania się skrzydeł na skutek nagrzewania od strony zewnętrznej. Nowy projekt skrzydła daje również możliwość zastosowania nowej gamy klipsów, uszczelek podszybowych i montażowych analogicznych jak w systemie TM 102 HI.
Nowością jest też uszczelka akustyczna i narożniki tej uszczelki do skrzydła z powłoką ślizgową, która poprawia komfort otwierania i zamykania drzwi. Udoskonaleniem wprowadzonym przez firmę Yawal jest również nowy profil odwracający 48.46020.x, który jest znacznie łatwiejszy w montażu, z przygotowanym gniazdem pod hamulec Hautau Comfort Close. Wyeliminowano także konieczność stosowania profilu poszerzającego w wersji jednoszynowej ze szkleniem stałym, co pozwala na uzyskanie większej powierzchni szklenia i tym samym poprawienie izolacyjności termicznej okien energooszczędnych.
Dzięki nowemu profilowi ruchomego słupka zostały usunięte elementy wystające na zewnątrz konstrukcji. Dodano również nowe końcówki z miękkiego tworzywa.
Po stronie wewnętrznej zastosowano z kolei klips 48.86114.x, maskujący futrynę.
Ciekawym udoskonaleniem jest też nowa wersja futryny 48.18043.x – tzw. „niski próg”, pozwalająca na wykonanie zabudowy bezprogowej, nie stanowiącej barier dla osób niepełnosprawnych oraz jest pożądanym rozwiązaniem tam gdzie przemieszczanie się z wnętrza pomieszczenia na zewnątrz (np. restauracje, tarasy) jest ważną kwestią.
Wśród nowości znalazły się ponadto nowe wypełnienia wewnątrzprofilowe z materiału XPS, poprawiające izolacyjność termiczną, opcja zastąpienia uszczelki szczotkowej 203.1810.0 uszczelką EPDM 204.0581.6, co dodatkowo poprawia szczelność konstrukcji, czy możliwość kołkowania połączeń narożnych każdego typu futryny czy elementy tworzywowe 107.1804.6, stabilizujące skrzydło w pionie podczas zamykania/otwierania.
Możliwość wykonywania połączeń narożnych systemu DP 180 z innymi systemami YAWAL, takimi jak TM74 HI, TM77 HI, TM102 HI, FA 50N, FA 50N SL czy wykonywania konstrukcji w klasie antywłamaniowej RC 2 jest odpowiedzią na najbardziej zróżnicowanie wymagania klientów odnośnie aluminiowych profili konstrukcyjnych.
Z ofertą firmy można zapoznać się na stronie: www.yawal.com
Treść wygasła




















